Ò«²ÊÍø

½Ó´ý»á¼ûÒ«²ÊÍø¹Ù·½ÍøÕ¾£¡£¡

ÐÐÒµÐÂÎÅ

±ü³Ö׿á³ÖÆ·ÖÊ¡¢ÔðÈΡ¢¾«Ð¡¢Ö´×ŵÄÀíÄ£¬£¬ÖÂÁ¦³ÉΪÄúÖª×ãµÄÏàÖúͬ°é

ÄúÄ¿½ñËùÔÚµÄλÖ㺣ºÊ×Ò³ > ÐÂÎÅ×ÊѶ > ÐÐÒµÐÂÎÅ

ÖÕÓÚ×°ÐÞÍ깤£¬£¬£¬È̲»×¡É¹É¹£¬£¬£¬È«Îݶ¨Öƹñ×ÓºÜÖª×㣬£¬£¬µçÊÓÇ½ÌØÊâÊÊÓà Ðû²¼Ê±¼ä£º£º2023-05-11   ä¯ÀÀ£º£º1389´Î
ÖÕÓÚ×°ÐÞÍ깤£¬£¬£¬È̲»×¡É¹É¹£¬£¬£¬È«Îݶ¨Öƹñ×ÓºÜÖª×㣬£¬£¬µçÊÓÇ½ÌØÊâÊÊÓÃ

¡¡¡¡ÎÒ¼ÒÕâÌ×оÓÊǽ»¸øÔÚ×°ÐÞ¹«Ë¾×öÉè¼ÆÊ¦µÄ±í¸ç×°ÐÞ£¬£¬£¬Ö÷²Ä¶¼ÊÇÀϹ«ÈÏÕæÂòµÄ£¬£¬£¬Æ½Ê±ÎÒÓÐʱ¼äÒ²»áµ½¹¤µØ¼à¹¤¡£¡£¡£¡£´ÓÆßÔÂÖÐÑ®¿ª¹¤µ½ÏÖÔÚ£¬£¬£¬ÖÕÓÚ×°ÐÞÍ깤£¬£¬£¬ÖµµÃ˵µÄ¾ÍÊÇÈ«Îݶ¨Öƹñ×ÓºÜÖª×㣬£¬£¬¼ÒÀïµÄЬ¹ñ°¡¡¢Ò¹ñ°¡¡¢¾Æ¹ñµÈµÈ×ö³öÀ´µÄЧ¹ûºÜƯÁÁ¡£¡£¡£¡£Éè¼ÆµÄ¿ÍÌüµçÊÓÅä¾°Ç½ÌØÊâÊÊÓ㬣¬£¬¼ÒÀï°ëµã¿Õ¼ä¶¼Ã»ÓÐÆÌÕÅ£¬£¬£¬È̲»×¡¸ø¸÷ÈËɹɹ£¡£¡

u=2582398265,1183935106&fm=173&app=49&f=JPEG?w=640&h=448&s=1EAA702381CE60EA0EFCF1CA0000E0B1

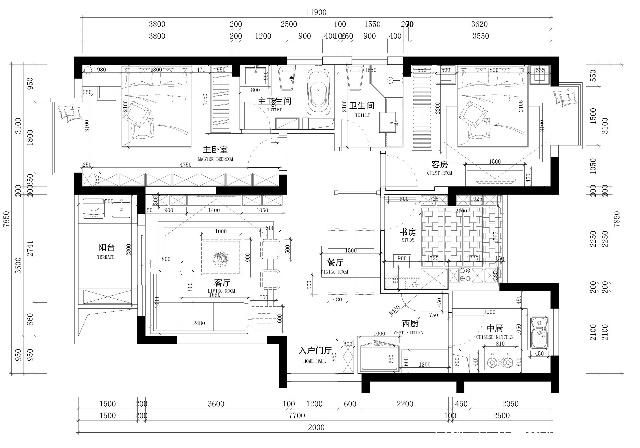
¡¡¡¡ÕâÊÇÒ«²ÊÍø¼Ò¾ßÆ½Ãæ°²ÅÅͼ£¬£¬£¬±í¸çƾ֤ҫ²ÊÍøÐèÇóÉè¼Æ³öÀ´µÄ£¬£¬£¬ÕûÌåµÄ½á¹¹¶¼½ÏÁ¿ºÏÀí£¬£¬£¬ºÜϲ»¶¡£¡£¡£¡£

u=3403590158,1307209480&fm=173&app=49&f=JPEG?w=640&h=853&s=21819C5F966D651FC39151600300E010

¡¡¡¡ÕâÊÇÎÒÃǼҵÄÈ뻧Ь¹ñ£¬£¬£¬Ð¬¹ñ·ÖΪÉÏÏÂÁ½²ã£¬£¬£¬ÖÐÐÄÁô¿ÕλÖÃ˼Á¿µ½·Å¼ÒÀïµÄÔ¿³×¡£¡£¡£¡£Ð¬¹ñÏÂÃæÒ²ÊÇÁô¿ÕλÖ㬣¬£¬Æ½Ê±³£´©µÄЬ×Ó£¬£¬£¬¾Í¿ÉÒÔÖ±½Ó·ÅÏÂÃæÁË¡£¡£¡£¡£Ð¬¹ñÊǶ¨ÖƵÄ£¬£¬£¬¹ñÃÅ»¹Ã»ÓÐ×°ÖõÄЧ¹û£¬£¬£¬¹¤ÈËÊÇÔÚÊ©¹¤ÄØ£¡£¡

u=2179220076,3879443087&fm=173&app=49&f=JPEG?w=450&h=600&s=A11252DFCCEEA33EC01C51CB0100E090

¡¡¡¡Ð¬¹ñÖÐÐÄ×öÁ˹ҹ³£¬£¬£¬Æ½Ê±¿ÉÒÔ¹ÒһЩСµÄ°ü°ü£¬£¬£¬»òÕßñ×ÓºÜÀû±ã¡£¡£¡£¡£

u=120890743,753927751&fm=173&app=49&f=JPEG?w=640&h=959&s=D223924554074B4F08BD38F103008031

¡¡¡¡ÖØÐ¾ӿª¹¤ÄÇÌìÆð£¬£¬£¬¾ÍÒ»Ö±ÅÎÔ¸×ÅÄÜÔçµã×°ÐÞÍ깤£¬£¬£¬ÏÖÔÚÖÕÓÚ×°ÐÞÍ깤ÁË£¬£¬£¬×Åʵ¿ªÐİ¡¡£¡£¡£¡£Õâ±ßÊÇÈë»§½øÀ´µÄÊӽǣ¬£¬£¬ÓÒ±ßÊÇЬ¹ñ£¬£¬£¬ÔÙÍùÄÚÀï¾ÍÊDzÍÌü£¬£¬£¬ÎÒÃǼҾÍÊÇÕâÑùµÄ»§ÐÍÃûÌᣡ£¡£¡£È«ÎݵØÃæ³öÁ˳ø·¿£¬£¬£¬ÎÀÉú¼äºÍÑǫ֮̂Í⣬£¬£¬ÆäËûµÄ¿Õ¼äµØÃæ¶¼ÊÇÆÌľµØ°å£¬£¬£¬±È´ÉשµÄЧ¹ûƯÁÁ¶àÁË¡£¡£¡£¡£

u=2230088572,2839623364&fm=173&app=49&f=JPEG?w=640&h=480&s=D13A3AD74E1B7ACC74819D6103004031

¡¡¡¡Õâ±ßÊDzÍÌü£¬£¬£¬²Í×ÀÊÇ¿ÉÒÔÕÛµþÆðÀ´µÄÄÇÖÖ¡£¡£¡£¡£Æ½Ê±¼ÒÀïûÓпÍÈËÀ´µÄʱ¼ä£¬£¬£¬ÎÒÃǾÍʹÓ÷½ÐεIJÍ×À£»¼ÒÀïÀ´¿ÍÈË£¬£¬£¬È˶àµÄʱ¼ä¾Í¿ÉÒÔŪ³ÉÔ²ÐεÄ£¬£¬£¬ÌØÊâÀû±ã¡£¡£¡£¡£²Í×ÀÒÎÊDz¼ÒÕ»¨ÎÆ£¬£¬£¬ºÜÊÇÆ¯ÁÁ£¬£¬£¬×ø×ÅÒ²ºÜã«Òâ¡£¡£¡£¡£

u=2330246807,283824819&fm=173&app=49&f=JPEG?w=640&h=853&s=92125E874E0F614D561B8D7B0300403B

¡¡¡¡ÏëÒªÔ²ÐεIJÍ×ÀÏԵøü´óÆøÒ»Ð©£¬£¬£¬ÌØÊâÊǶ¬Ìì´òů¹øµÄʱ¼ä¾Í½ÏÁ¿Àû±ãÁË£¡£¡ºóÃæ×öÁËÒ»¸öµñ»¨×è¶ô£¬£¬£¬×Åʵ¾ÍÊǵ±³õÎÀÉú¼ä£¬£¬£¬ÃÅÕý¶Ô×ŲÍÌü£¬£¬£¬ºÜÊÇÆ¯ÁÁ£¬£¬£¬²¢ÇÒÒ²ºÜÊÊÓᣡ£¡£¡£µñ»¨ÊÇÔÚÍâÃæ¶¨ÖƵÄ£¬£¬£¬ÖÊÁ¿ºÜ²»´íÄØ£¡£¡

¡¡¡¡²Í×ÀÉϰ²ÅÅһЩÈí×°£¬£¬£¬Ð§¹ûºÜÓвã´Î¡£¡£¡£¡£×Åʵ±í¸çÊÇΪÁ˵ִï¸üƯÁÁµÄЧ¹û£¬£¬£¬ÌØÒâ°²ÅŲÍ×ÀÉÏÕâЩ¹¤¾ß×ö×°ÊΡ£¡£¡£¡£

u=2880022486,2113406631&fm=173&app=49&f=JPEG?w=640&h=427&s=58238351061047DC4A3D3D6603008060

¡¡¡¡Ð¾Ó×°ÐÞ¼òÅ·Æø¸Å£¬£¬£¬ÌØÊâϲ»¶²Í×ÀÉϵĻ®·Ö£¬£¬£¬ÂÌÉ«µÄºÜÊÇÆ¯ÁÁ£¡£¡

u=3682700133,3397463633&fm=173&app=49&f=JPEG?w=640&h=427&s=D2383EC562134BDE0E8DED7B0300507B

¡¡¡¡Õâ±ßÊÇ¿ÍÌü£¬£¬£¬´°Á±ºóÃæÓÐÒ»¸ö×ÔÁ¦µÄÉúÑÄÑǫ̂£¬£¬£¬²É¹âÌØÊ⸻×㣬£¬£¬¿Õ¼äÏÔµÃÒ²½ÏÁ¿´óÆøÒ»Ð©¡£¡£¡£¡£Å·Ê½µÄ¿ÍÌü¼Ò¾ßºÜÊÇ´óÆø£¬£¬£¬µØÃ滹·Å×ŵØÌº£¬£¬£¬ºÜÊÇÓвã´Î¡£¡£¡£¡£

u=395144852,4053133652&fm=173&app=49&f=JPEG?w=640&h=427&s=923A7E85665373CED0A588610300707B

¡¡¡¡¿ÍÌüµçÊÓÅ侰ǽ´òÂú¹ñ×ÓÌØÊâÊÊÓ㬣¬£¬Ë¼Á¿µ½ÎÒÃǼҵÄÃæ»ý½ÏÁ¿Ð¡Ò»Ð©£¬£¬£¬²¢ÇÒÈ«ÎݵĹñ×Ó¶¼ÊǶ¨ÖƵÄ£¬£¬£¬ÒÔÊÇ¿ÍÌüµçÊÓÅ侰ǽҲÊǶ¨ÖÆÁ˹ñ×Ó£¬£¬£¬ÖÐÐÄÁô¿ÕλÖÃǡǡ¿ÉÒԷŵçÊÓ»ú¡£¡£¡£¡£ÒÔºóÈëסоÓÁË£¬£¬£¬ÓÐÕâÑùÒ»¸öºÜÊÇ´óµÄ¹ñ×Ó£¬£¬£¬¿ÉÒÔÌṩÂù²»´íµÄ´¢Îï¿Õ¼ä£¬£¬£¬ÎÒÃÇҲûÓÐÐëÒªµ£ÐÄÒÔºóÈëסоÓ£¬£¬£¬µ£ÐÄûÓйñ×Ó¶ø×°¹¤¾ß¶ø°ÃÄÕÁË£¡£¡

u=4069910391,3148494500&fm=173&app=49&f=JPEG?w=640&h=427&s=771314C1AE6C1E1F8DF9243703005042

¡¡¡¡¿ÍÌüµçÊÓÅ侰ǽ×öÁ˹ñ×ÓʽµÄ£¬£¬£¬¼È¿ÉÒÔÌṩ´¢Îï¿Õ¼ä£¬£¬£¬²¢ÇÒ»¹¿ÉÒÔµ±×öÅ侰ǽʹÓᣡ£¡£¡£Ò»Ð©»¹Ã»ÓÐ×°ÐÞµÄÅóÙ­¹ýÀ´ÂÃÐУ¬£¬£¬¼ûµ½ÎÒÃǼҿÍÌüµçÊÓÅ侰ǽ×öÂúÁ˹ñ×Ó£¬£¬£¬¶¼ºÜÏÛĽ¡£¡£¡£¡£ÓеÄÁÚÈË»¹ËµÒÔºó¼ÒÀïµÄµçÊÓǽ£¬£¬£¬Ò²ÒªÑ§ÎÒ¼ÒÕâÑùÄØ£¡£¡È«ÎݵĹñ×Ó¶¼ÊÇÔÚÍâÃæ¶¨ÖƵÄ£¬£¬£¬°üÀ¨ÏÖÔÚÕâ¸ö¿ÍÌüµçÊÓÅ侰ǽµÄ¹ñ×Ó£¬£¬£¬ÌØÊâÖª×ã¡£¡£¡£¡£

u=2999634755,3376266799&fm=173&app=49&f=JPEG?w=640&h=427&s=E512579561C3D94F10257D650300C072

¡¡¡¡Õâ±ßÊÇ¿ÍÌüºÍ²ÍÌüÈ«¾°Ð§¹û£¬£¬£¬ÕûÌåµÄ¶¼ºÜÊǺ£ºÏÀí£¬£¬£¬Ò»ÑÛÍûÈ¥Öª×ã¾ÍÊÇ¿ÍÌüµçÊÓÅ侰ǽµÄÉè¼Æ£¬£¬£¬¼ÒÀï°ëµã¿Õ¼ä¶¼ÉáµÃ²»µÃÆÌÕŰ¡¡£¡£¡£¡£

u=4052224558,303772615&fm=173&app=49&f=JPEG?w=640&h=427&s=C33B16C554035F490839E17D03009033

¡¡¡¡Ð¾ӵÄÈí×°£¬£¬£¬ÀϹ«¶¼ÊÇÆ¾Ö¤±í¸çµÄ½¨ÒéÈ¥ÂòµÄ£¬£¬£¬Âò»ØÀ´Ö®ºó±í¸ç×Ô¼º´îÅ䣬£¬£¬Ëµ×Åʵ»°µÄÕæµÄÐÁÇÚËûÁË£¡£¡É³·¢Ç½ÉϹÒ×ÅÈý·ù×°Êλ­£¬£¬£¬ºÜÊÇÆ¯ÁÁ£¬£¬£¬ÓëÕû¸ö¿Õ¼ä¶¼ºÜ´îÅäÄØ£¡£¡

u=3347740456,3061072171&fm=173&app=49&f=JPEG?w=640&h=959&s=31A1DB11621669DEC92570E10300E030

¡¡¡¡Õâ±ßÊÇ´ÎÎÔ£¬£¬£¬¸øÅ®¶ù×¼±¸µÄ·¿¼ä¡£¡£¡£¡£¿Õ¼ä½ÏÁ¿Ð¡£¬£¬£¬×öÁËÒ»¸öºÜÊÇÊÊÓõÄé½é½Ãס£¡£¡£¡£é½é½Ã×Ò²ÊǶ¨ÖƵÄ£¬£¬£¬ÌØÊâÖª×㣬£¬£¬ÖÊÁ¿Óë×ö¹¤¶¼ºÜ²»´í¡£¡£¡£¡£

u=3709863628,3186361292&fm=173&app=49&f=JPEG?w=640&h=427&s=8D0A337D4B01725F1E2101E50300C023

¡¡¡¡´²±»Ì×ÀàËÆÒ»¸öС°×ÍõÄÔìÐÍ£¬£¬£¬·Ç³£¿É°®¡£¡£¡£¡£

u=3935585790,1951363700&fm=173&app=49&f=JPEG?w=640&h=427&s=8C1B83550BA3452E103DA5FA03004033

¡¡¡¡Õâ±ßÊÇ´ÎÎÔ£¬£¬£¬°×É«µÄÒ¹ñÒ²ÊǶ¨ÖƵÄ£¬£¬£¬ÎÒÃǶ¼ºÜϲ»¶¡£¡£¡£¡£Ò¹ñÉÏÃæ×öÁËÖÐ Ñë¿Õµ÷£¬£¬£¬Ê¹ÓõÄʱ¼ä½ÏÁ¿Àû±ã¡£¡£¡£¡£¶¥ÃæÌùʯ¸àÏßÌõ¡£¡£¡£¡£

u=1453069936,3926804445&fm=173&app=49&f=JPEG?w=640&h=427&s=7D2382535E46525F1C34A5D60300E032

¡¡¡¡ÓиöÆ®´°Âù²»´íµÄ£¬£¬£¬²É¹âÒ²½ÏÁ¿ºÃ£¡£¡Æ®´°ÉÏÃæ·Å×Å×øµæ£¬£¬£¬ÒÔºóÈëסÁË¿ÉÒÔ×øÔÚÆ®´°ÉÏ¿´Ê飬£¬£¬»òÕßÍæÍæÊÖ»ú¡£¡£¡£¡£

u=923124559,598257219&fm=173&app=49&f=JPEG?w=640&h=427&s=8E33C201D3556C7F4F9555CB0300B0B0

¡¡¡¡Õâ±ßÊÇÖ÷ÎÔ£¬£¬£¬ÎÒºÍÀϹ«µÄ·¿¼ä¡£¡£¡£¡£ÎÔÊÒµÄ×°ÐÞ¶¼ÊÇÒ»ÑùµÄ£¬£¬£¬Óұ߶¨ÖÆÁËÒ»ÅźÜÊÇ´óÆøµÄÒ¹ñ£¬£¬£¬´¢Îï¿Õ¼äÌ«¸»×ãÀ²£¬£¬£¬ÏÔµÃÒ²ºÜ´óÆøÄØ£¡£¡´²Í·Å侰ǽ¹Ò×ÅÒ«²ÊÍø×°Êλ­£¬£¬£¬¿ÉÒÔÆðµ½ºÜÔÃÄ¿µÄ×°ÊÎЧ¹û¡£¡£¡£¡£

u=1877335241,2383080743&fm=173&app=49&f=JPEG?w=640&h=590&s=5133A37529565A5F4CA880FF0300C021

¡¡¡¡¸ø¸÷ÈË¿´ÏÂÎÒÃǼÒÈ«Îݶ¨ÖƵÄÒ¹ñ£¬£¬£¬Ì«Æ¯ÁÁ£¬£¬£¬Ì¨Éϲã´ÎÀ²£¡£¡

u=1548291814,4182683838&fm=173&app=49&f=JPEG?w=640&h=427&s=E101D11346055B491C0C3CC70300E0A1

¡¡¡¡´²Í·ÅÔ±ß×öÁËÊáױ̨£¬£¬£¬ÉÏÃæ×öÁ˵õ¹ñ£¬£¬£¬Ò²ºÜÊÊÓᣡ£¡£¡£

u=3062366237,1492455574&fm=173&app=49&f=JPEG?w=640&h=959&s=B984CB1466465F5FCE2439EE03007030

¡¡¡¡Õâ±ßÊdzø·¿£¬£¬£¬Ãſڻ¹¶¨ÖÆÁËÉÏÏÂÁ½²ãµÄ¹ñ×ÓÄØ£¬£¬£¬ÌØÊâϲ»¶¡£¡£¡£¡£¼ÒÀïÖ»ÒªÓпÕ룬£¬£¬ÎÒÃǶ¼²»ÆÌÕÅ£¬£¬£¬¶¼¶¨ÖÆÁ˹ñ×Ó¡£¡£¡£¡£

u=3882236020,2925328457&fm=173&app=49&f=JPEG?w=640&h=959&s=31315B916E175DDA5A2118C003007030

¡¡¡¡³ø·¿¿Õ¼äÂùСµÄ£¬£¬£¬¶¨ÖÆÁË¡°U¡±×ÖÐεij÷¹ñ¡£¡£¡£¡£

u=1337031272,808780177&fm=173&app=49&f=JPEG?w=640&h=959&s=2100D81173465F5F022DED710300B030

¡¡¡¡Õâ±ßÊÇÖ÷ÎÔÎÀÉú¼ä£¬£¬£¬½á¹¹ºÜÊǺ£ºÏÀí£¬£¬£¬×°ÐÞÒ²ºÜƯÁÁ¡£¡£¡£¡£×öÁËÔ²»¡ÐεĸÉʪÊèÉ¢£¬£¬£¬ÌØÊâ´óÆø¡£¡£¡£¡£

u=1694945062,1615495162&fm=173&app=49&f=JPEG?w=640&h=853&s=008B915D4A267B1D5488887503000073

¡¡¡¡Õâ±ßÊǹ«¹²ÎÀÉú¼ä£¬£¬£¬Ò²ÊÇ×ö¸ÉʪÊèÉ¢£¬£¬£¬ÂíͰµÄÃûÄ¿ºÜÊÇϲ»¶¡£¡£¡£¡£ÖÕÓÚ×°ÐÞÍ깤£¬£¬£¬È̲»×¡É¹É¹£¬£¬£¬È«Îݶ¨Öƹñ×ÓºÜÖª×㣬£¬£¬¿ÍÌüµçÊÓÅä¾°Ç½ÌØÊâÊÊÓã¡£¡ºÜÊÇлл±í¸ç°ïÎÒÃÇ×°ÐÞÓëÉè¼ÆÄÇôƯÁÁµÄоÓ£¬£¬£¬È«ÎÝ×°ÐÞ¶¼ºÜÊÇÖª×ã¡£¡£¡£¡£×°ÐÞÕâ¶Îʱ¼äÒ²ÐÁÇÚÀϹ«ÁË£¬£¬£¬¼ÒÀïµÄÖ÷²Ä¶¼ÊÇËûÂòµÄ¡£¡£¡£¡£ÎÒÃÇÍýÏë͸·çµ½ÔÂβ¾Í¿ÉÒÔ°á½øÀ´ÈëסÀ²£¬£¬£¬ÕæµÄºÜÊÇÆÚ´ý£¡£¡½ñÌì¾Í·ÖÏíµ½ÕâÀïÀ²£¬£¬£¬Ï£ÍûÎÒÃǼҵÄ×°ÐÞ£¬£¬£¬Äܸø¸÷ÈË´øÀ´ºÃµÄ×°ÐÞÁé¸Ð£¡£¡


  • 400-999-1569
    Ò»¼ü²¦ºÅ
  • ¶ÌÐÅ×Éѯ
    ¶ÌÐÅ×Éѯ
  • Éó²éµØÍ¼
    Éó²éµØÍ¼
  • ¡¾ÍøÕ¾µØÍ¼¡¿
    ÖÕÓÚ×°ÐÞÍ깤£¬£¬£¬È̲»×¡É¹É¹£¬£¬£¬È«